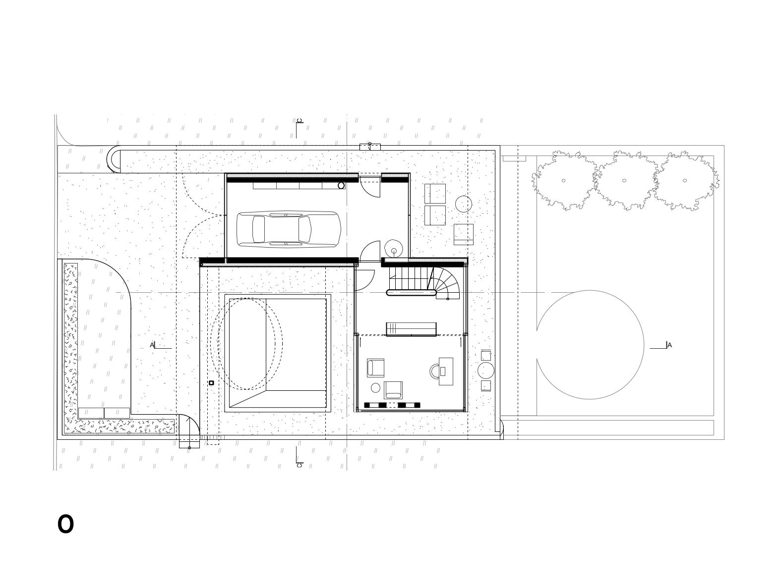
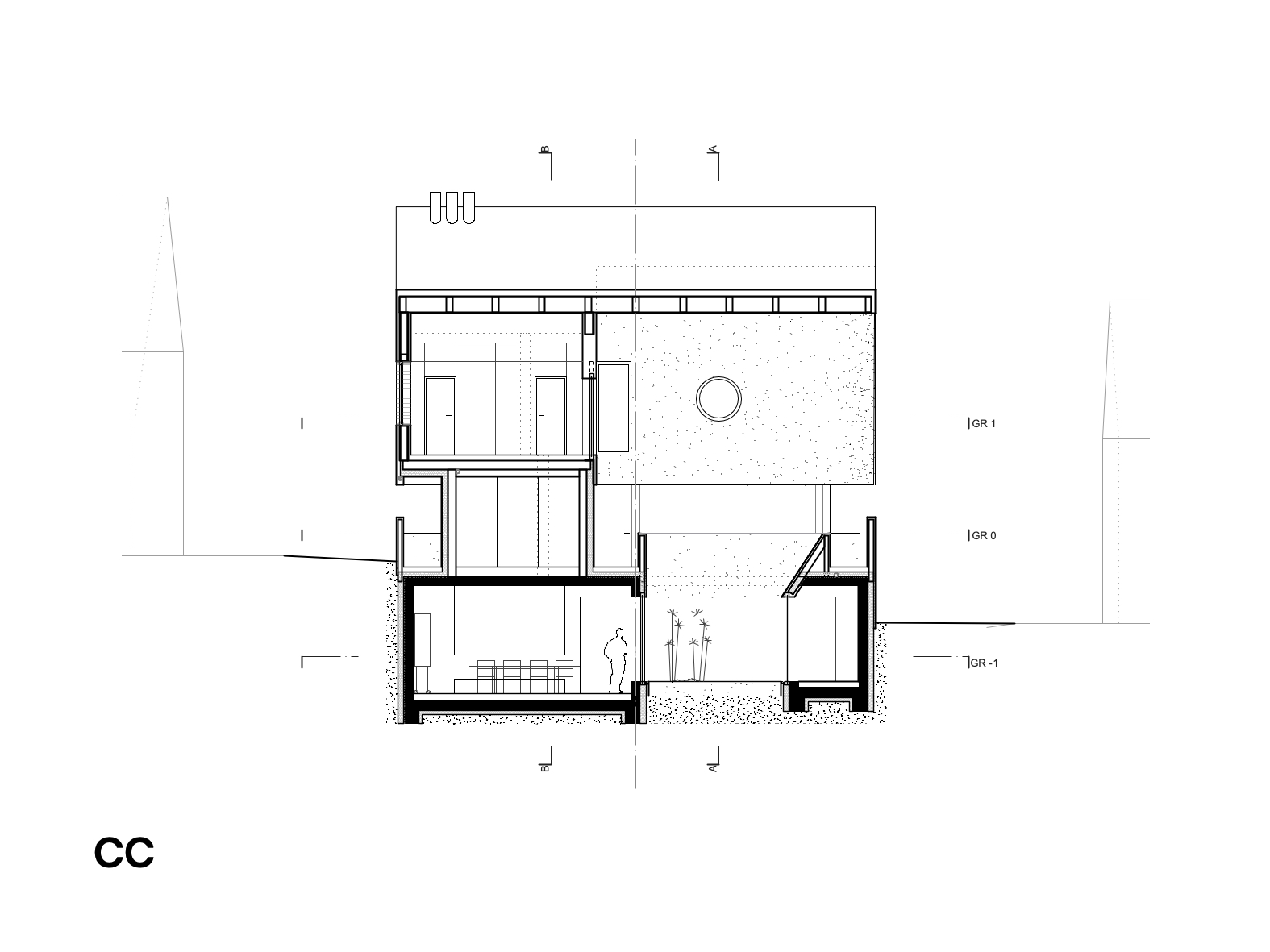
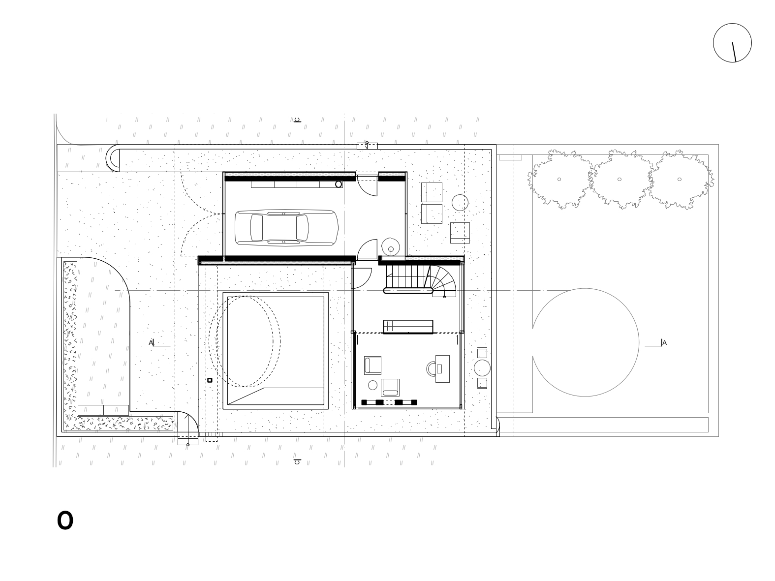
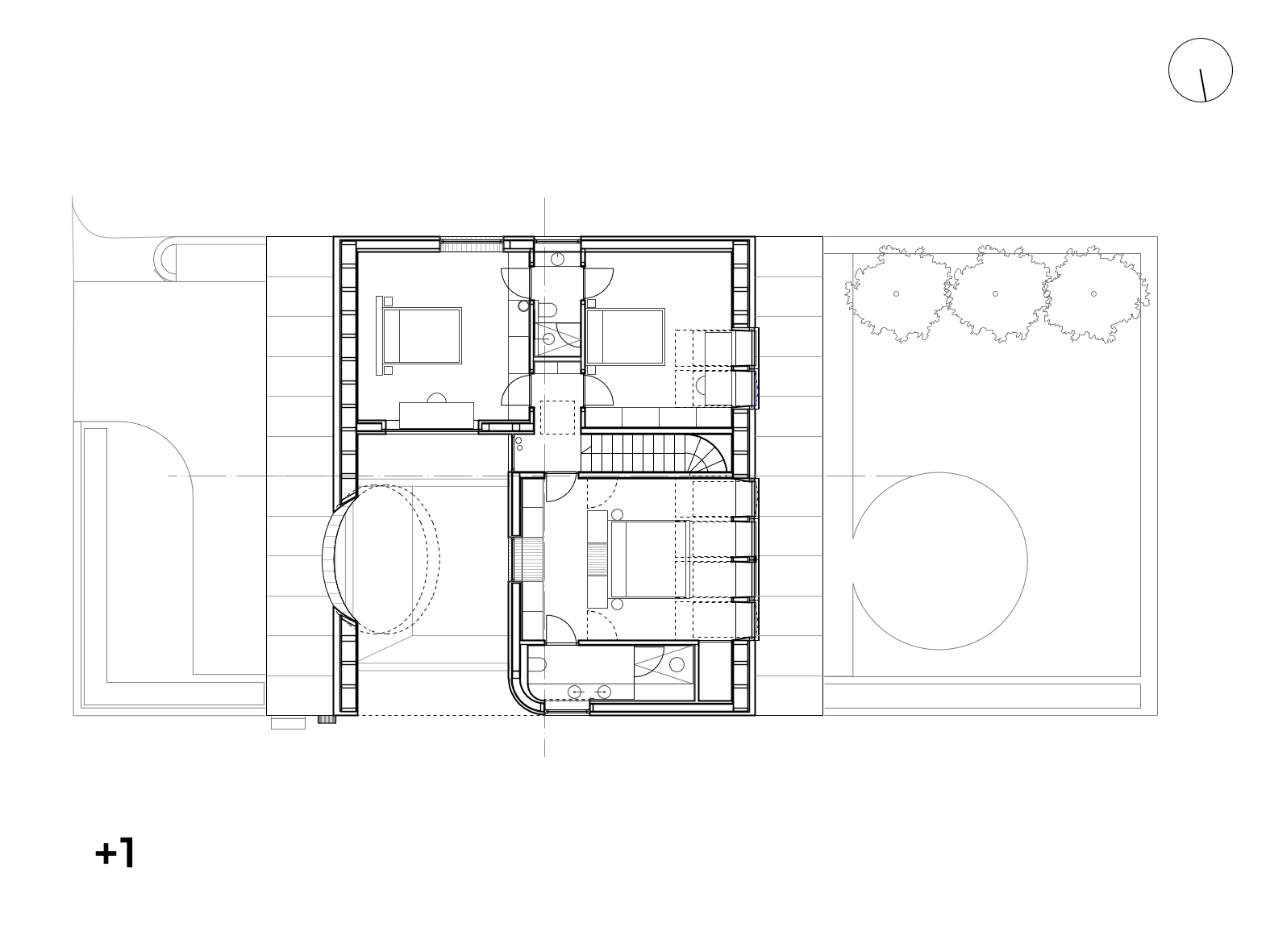
HOUSE JS Designing a family home is a balancing act, where private needs, context, and strict public codes must be aligned into a coherent whole.
In this project, the ground floor sets the tone: it separates sleeping above from living below, connects front and back, and opens almost entirely to the outdoors while a generous roof shields from uninvited views. Across three levels, the house offers varied experiences—rooms with distinct atmospheres, moods, and materials allow for flexible use and personal appropriation.