Current Work
KE3-A The large-scale development project in Olm by SNHBM proposes a car-free, pedestrian-oriented neighbourhood structured into thematic quarters, each served by a perimeter parking garage that becomes the first point of contact and a key identity marker for residents and visitors.
This in mind, our proposal for KE3-A serves two calls – one is shaped by use, the other by context:
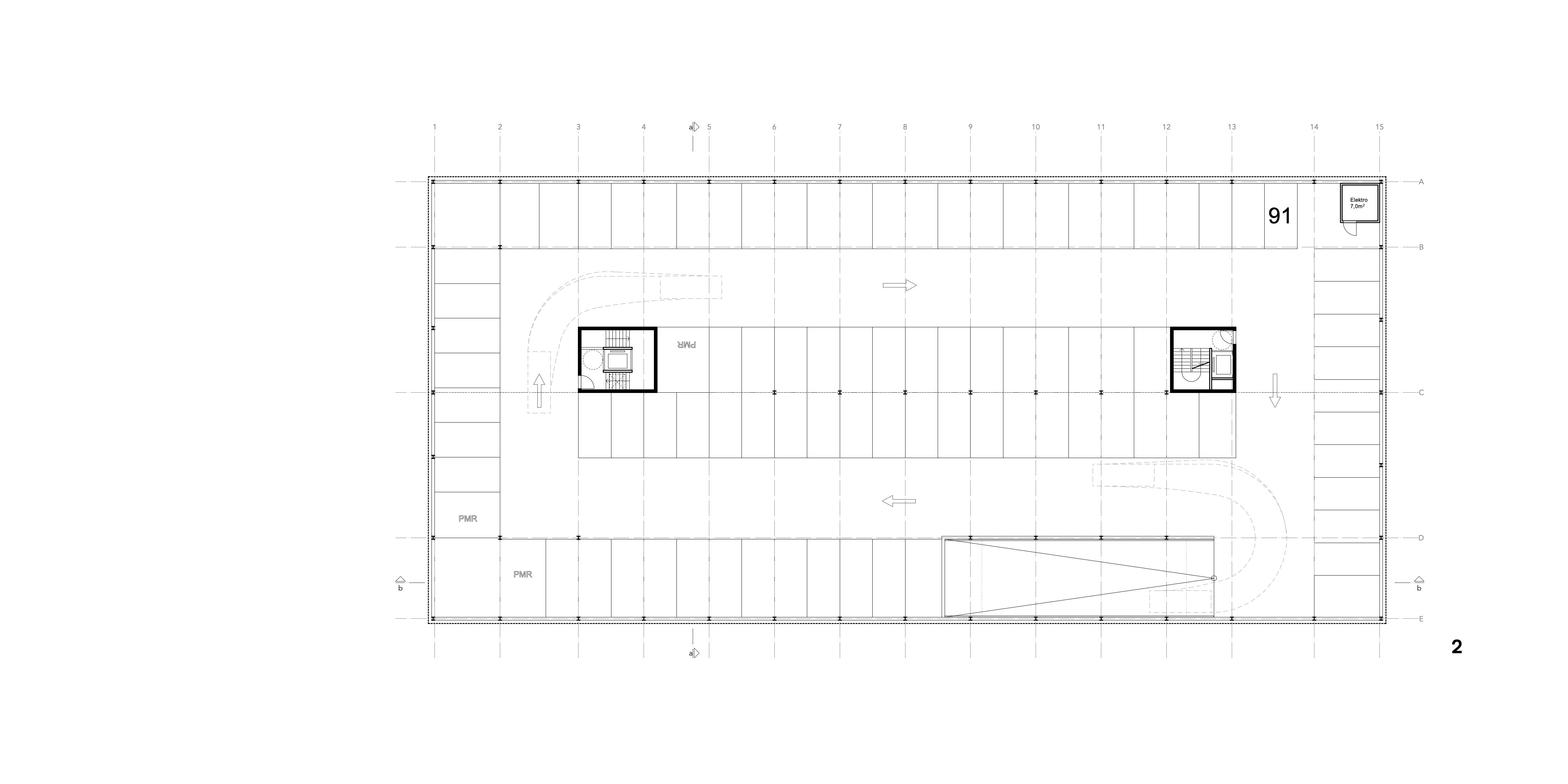
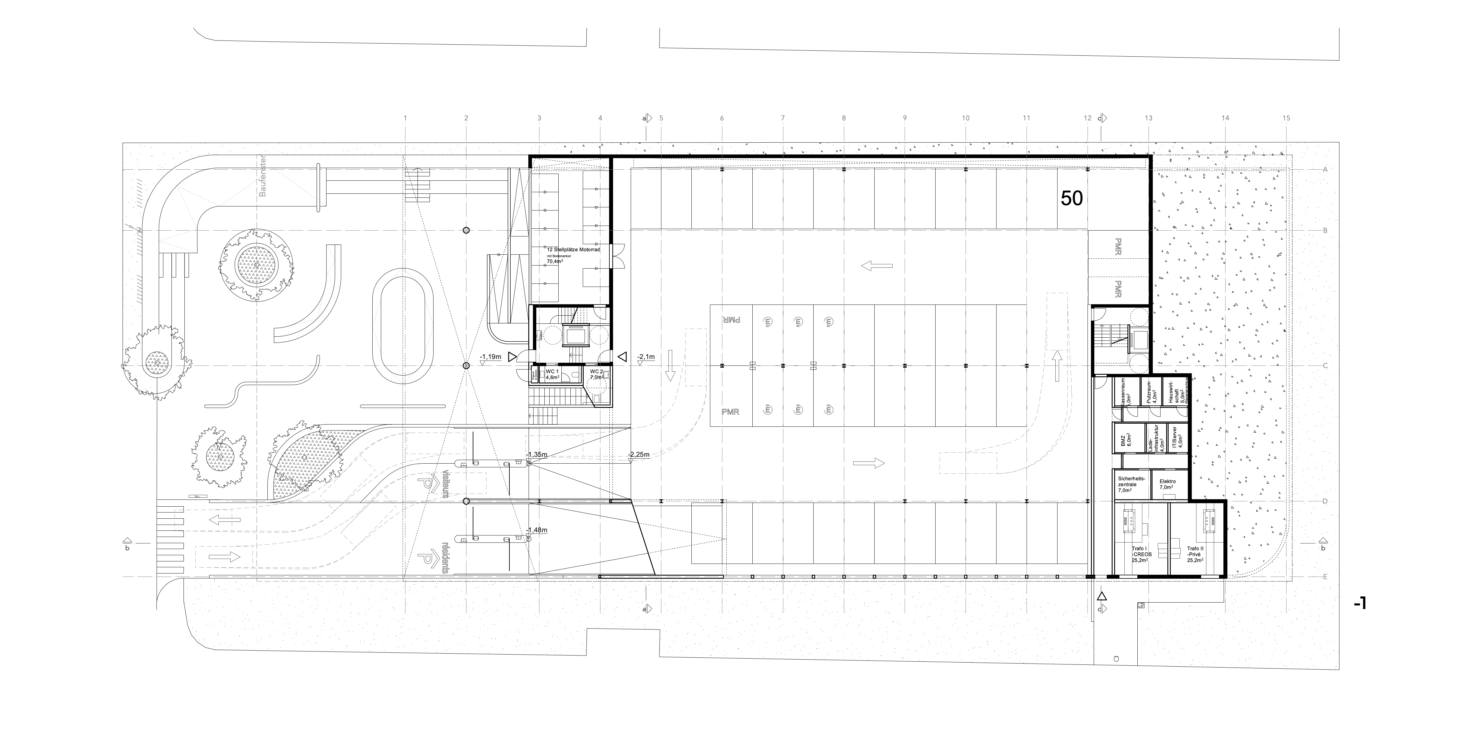
To ensure quick and smooth circulation for the resident’s everyday use of the parking structure, its layout is straightforward and clean: a series of linear ramps connects all levels and ensures forward access in and out. The separation between residents and visitors through exclusive ramps eases up orientation and avoids conflict.
Equally important to the design’s functional logic is its response to the neighbourhood through shape and meaning. Acknowledging the buildings unavoidable mass, the design carefully balances length and hight to find the most economical volume. This operation frees up space that becomes available to the community. To further reduce the scale, the building splits up into a plinth and a roof divided by a gap at the hight of the pedestrian. This nothingness at eyelevel helps to liberate views and to connect the existing urban fabric with the new.